Creek Cottage

Creek Cottage is a carefully considered refurbishment of a small holiday home located on the sandy seafront of Anderby Creek on the Lincolnshire coast. Set against a backdrop of expansive skies, long flat landscapes, and windswept dunes, the project transforms an ageing dwelling into a contemporary coastal retreat that is deeply connected to its surroundings.

Photographers: David Grandorge

The Project

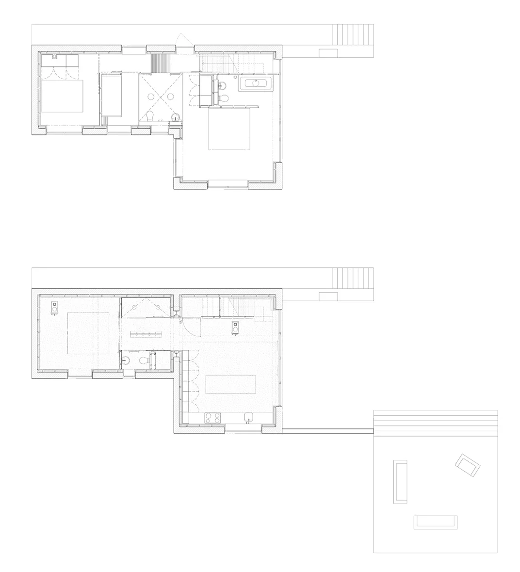
Originally, the existing two-storey structure functioned only as a first-floor residence, with the ground floor used solely for storage and garage space and no internal connection between levels. Much of the building fabric was in poor condition, prompting a strategy that stripped the house back to its structural shell. The renovation removed the roof covering, internal walls, ground floor slab, and external render, allowing the design to reimagine the relationship between the interior and the surrounding landscape.

A key architectural intervention was the introduction of a two-storey steel portal frame on the beach-facing façade, creating a large glazed elevation that opens the house to sweeping views of the dunes and sea. This transformation replaces the previously limited window openings and allows natural light and the changing coastal environment to become central to the living experience.

Despite its modest scale, Creek Cottage comfortably accommodates up to six people. Every part of the layout has been carefully designed to maximise functionality while maintaining a sense of openness and calm. The ground floor is organised as a spatially open plan connected directly to the beach environment, with areas that subtly shift in atmosphere in response to weather, seasons, and daily life by the coast.

A central glass bathroom on the first floor forms a striking design feature. Positioned at the heart of the plan, the transparent enclosure glows softly when illuminated at night, transforming into a lantern-like element within the home. Sliding screens conceal practical areas such as the utility space and downstairs cloakroom, ensuring that even the most functional aspects of the house are thoughtfully integrated.

Designed specifically for life by the sea, the house includes generous showering facilities for rinsing off after swimming and a cloakroom-style corridor that stores beach equipment. Outside, a raised sun deck provides sheltered seating and uninterrupted views across the dunes to the sea. The deck also serves multiple purposes offering storage beneath for boats and equipment while acting as both a windbreak and sun shade.

Material choices were guided by the colours and textures of the surrounding landscape. The roof is clad in zinc for durability in harsh coastal conditions and to allow a crisp junction with the external walls. The building’s exterior is finished in lime render mixed with recycled green and clear glass particles. This subtly reflective surface echoes the tones of beach sand and dune grasses, scattering light across the façade and softening the building’s presence within the landscape.

Natural materials continue inside the house. Clay plaster walls and ceilings define the ground floor spaces, while lime plaster finishes the upper level. Throughout the project, the architects curated every detail—from furniture and lighting to cutlery and bed linens—creating a cohesive and carefully crafted interior environment.

The result is a small but exceptional holiday home that sits comfortably within its coastal setting. Creek Cottage feels both contemporary and timeless, as though it belongs naturally to the landscape around it—a quiet retreat designed for slowing down, reconnecting with nature, and experiencing life by the sea.

Photographers: David Grandorge & Jonathan Hendry

Process

Film: Tapio Snellman

Press

Architects Journal - November 2020

Awards

RIBA East Midlands Small Project of the Year Award 2020/2021

RIBA East Midlands Client of the Year Award 2020/2021