Cow Shed

Jonathan Hendry Architects were commissioned to transform a historic range of barns on the edge of Toynton St. Peter, Lincolnshire, into a single, sustainable dwelling. The project focuses on a sensitive conversion that respects the heritage of the site while embracing modern environmental technologies and sustainable building methods to minimise ecological impact.

Photographers: Jonathan Hendry

The Project

The site sits on the north-western edge of the village. Originally a working farmyard with nine varied buildings, the land offers a mix of built heritage and open agricultural landscapes, framed by mature trees that preserve privacy and a sense of enclosure.

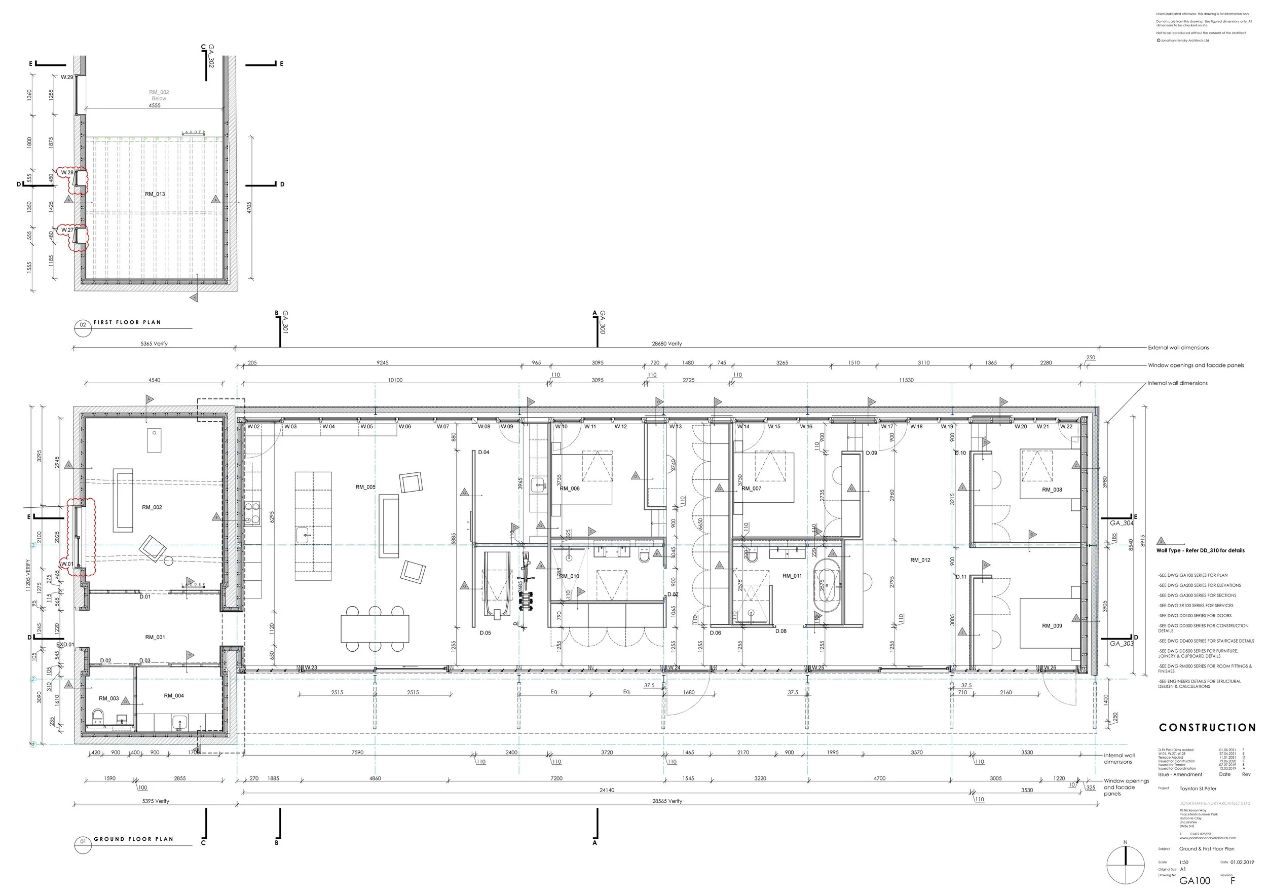
The design strategy prioritises restoration and minimal intervention, retaining the inherent character of the barns while introducing contemporary architectural elements. The Threshing Barn and Cow Shed form the heart of the new dwelling, carefully restored using traditional materials like lime mortar and timber, with modern interventions that improve thermal performance and energy efficiency. New elements are thoughtfully designed to complement the historic context, with clean, simple lines and materials that echo the agricultural origins of the buildings.

Sustainability is central to the project. The design incorporates passive solar orientation, high-performance insulation, air-tight construction, and efficient energy systems. Water, heating, and power consumption are minimised through smart technologies, while materials are chosen for their low environmental impact. The aim is to give the historic barns a new lease of life while reducing their carbon footprint and preserving their legacy for future generations.

The surrounding landscape will be sensitively managed to enhance biodiversity and ecological value. A native tree row and orchard will complement the rural character, while the access drive and pathways will retain the site’s traditional appearance using permeable surfaces. The design ensures accessible entry and circulation throughout the dwelling, complying with modern building standards.

The project has been developed in close consultation with local planning and conservation officers, ensuring the careful restoration of historic fabric. Features like the timber hay loft, brick walls, and roof structures will be preserved and repaired where needed, securing the longevity of the site’s architectural and cultural heritage.

Photographers: Jonathan Hendry

Process