Barnack

Church View, located in the historic village of Barnack, is a 16th-century Grade II listed cottage at the heart of a picturesque conservation area. Jonathan Hendry Architects were appointed to restore and extend this family home for the 21st century, carefully balancing modern living with the building’s rich architectural heritage.

Photographers: David Grandorge

The Project

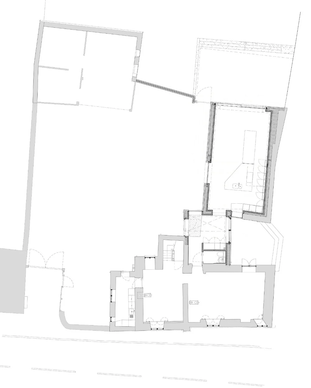
Within the original cottage; the living space, including exposed stone inglenook fireplace is to be restored, retaining a place for people seeking warmth to gather. The second reception room at ground floor level is to be converted to provide library/office accomodation with a new modern staircase replacing the exisitng, leading to the first floor. The exiting lobby and WC beyond are to be converted into a utility space. At first floor level the existing layout is to be restructured and refurbished. The bedroom as you arrive at first floor level is to be made into the master suite, with a connection made through the former party wall to a new dressing room and en- suite. The bedroom at the Western end of the building and bathroom to the East are to be restored and modernised to meet the requirements of a 21st century family home. An additional bedroom is formed in the two storey extension off the existing landing, with timber casement window on the west facade providing natural ventilation.

A key focus of the design is sustainability. The restoration preserves the energy embodied in the historic structure, while new additions use high-performance materials and energy-efficient systems to minimise environmental impact. The home is designed to be thermally efficient, well-ventilated, and naturally lit, creating a healthy, comfortable environment for its occupants.

The project also celebrates its setting. The private courtyard and south-facing garden have been carefully landscaped to maintain enclosure, privacy, and visual connection with the house, incorporating native trees and low-maintenance planting to enhance the property’s relationship with the village and its historic surroundings.

Church View embodies a thoughtful approach to heritage, architecture, and sustainability, creating a home that respects the past while embracing the needs of modern family life.

Materially the single storey element of the proposal learns from the existing outbuilding. It will be constructed of a mix of locally sourced stone and brickwork. The existing outbuilding, the proposed single storey extension and the brick wall that ties them together will be painted with a limewash, wrapping the structures in one continuous off-white material. The limewash is to have a bagged finish with a matte appearance. The shallow pitched roofs of the single storey elements are to be finished in a pre-weathered zinc to retain a natural grey tone that blends with the palette of materials and makes an analogy to the church roof opposite.

Photographers: David Grandorge

Process